Ersatzneubau eines Einfamilienhauses in einem Zweiseitenhof

Das Einfamilienhaus mit Funktionsanbau entstand als Ersatzneubau für eine bestehende Scheune in leichter Hanglage. 

Die Außengestaltung des Gebäudes orientiert sich an der Umgebungsbebauung im ländlichen Raum. Der dabei entstandene Gebäudekörper ist ein Massivbau mit Kalkstein-Mauerwerk-Mix aus WDV-System und hinterlüfteter Holzverschalung inklusive sichtbarer Holzdecken-Konstruktion und Dachstuhl. 

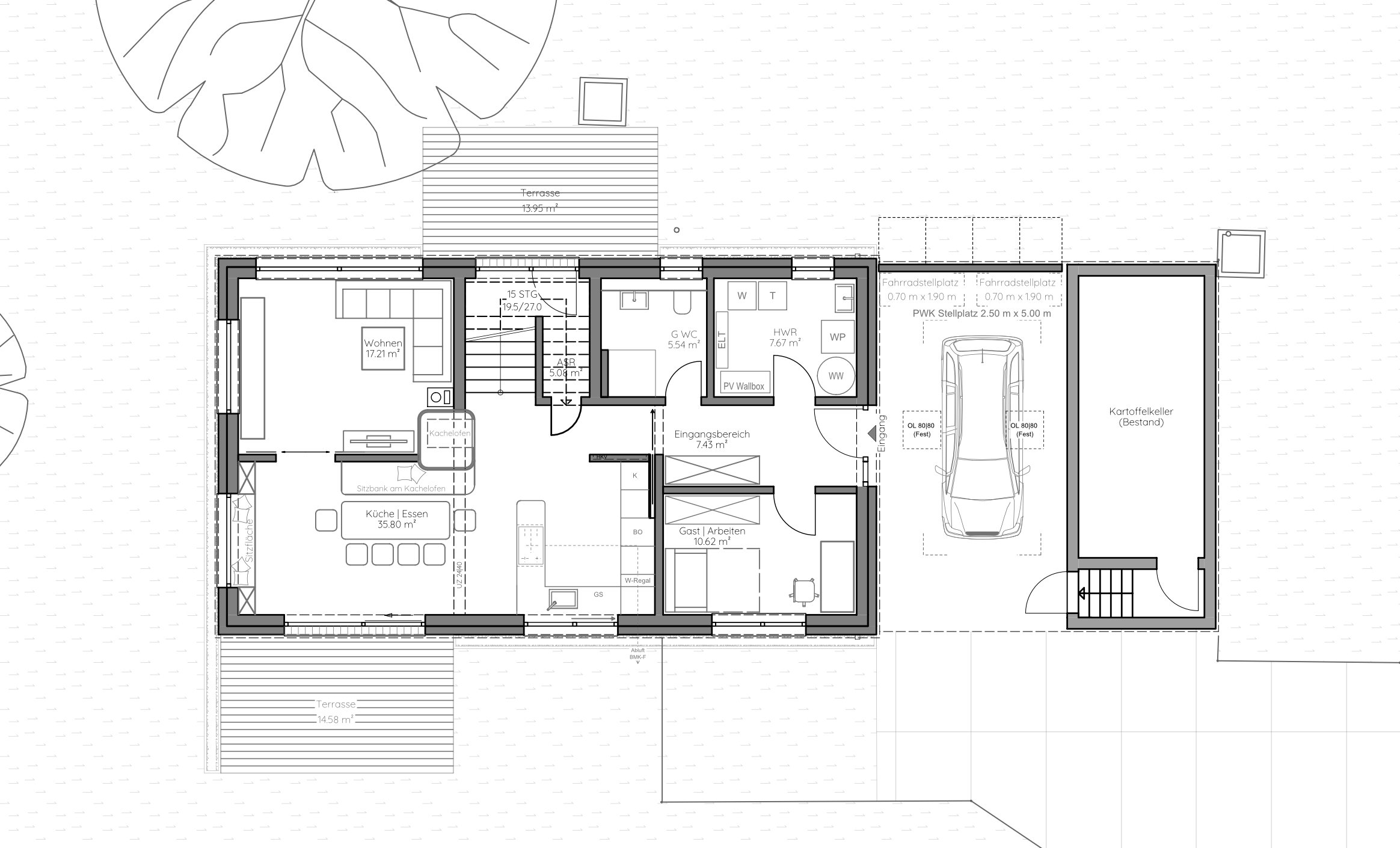
Die Raumgestaltung zeichnet sich insbesondere durch den großzügigen verbundenen Küchen- und Essbereich aus. Durch eine in das offene Wohnkonzept integrierte Innentreppe wird die Verbindung zwischen den Ebenen und somit Hof und Hangwiese hergestellt. 

Eine Geothermieanlage gewährleistet eine nachhaltige Wärmeerzeugung. Zusätzlich verfügt das Gebäude über eine Photovoltaik-Anlage zur Eigenstromerzeugung. 

Leistungsphasen: 1-4

Projektzeitraum: 2019-2020